
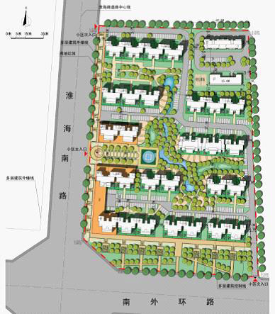
项目类型:居住建筑 设计年代:2009年12月 建设地点:安徽宿州市 总面积:74811 M2 设计说明:宿州市是安徽北大门,黄淮海平原的南端,该地块位于宿州市委市府所在地的埔桥区的淮海南站与南外环路交叉口东北角,这两条主干道都是通向该城市的行政中心和商业中心的主要通道。该地块所处位置交通便捷,环境优美,周边已有一些成规模的高尚居住区,形成了城市西南方向的次中心。因此,该小区的定位也是多层和小高层为主的高尚社区。设计中考虑了以大三居室为主,还有一部分四居室及四居室以上的大户型住宅。为了体现其高尚特性,小区的景观设计中引进了较大水面和硬地绿化,有较好的效果。
|